Über den Dächern von Westerheim

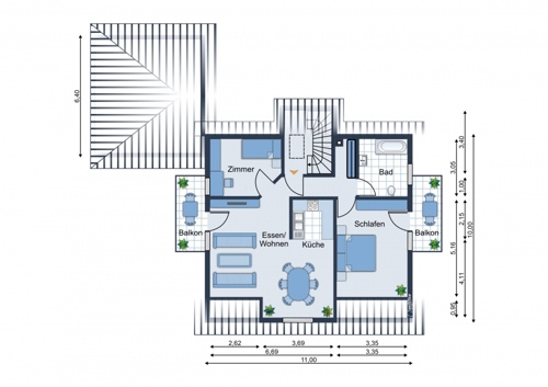
  • Grundriss

<< Zurück