Praxiseinheit in Westerheim!

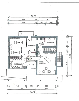
  • Grundriss Praxis

<< Zurück